Выбор материалов и конструкции
Для качественного воспроизведения музыки важна каждая деталь – от выбранных материалов, их сочетания и особенностей конструкции стойки до нанесенного на поверхности полок напыления с антирезонансными свойствами. Все эти факторы влияют на звучание аудиосистемы и восприятие звука слушателями. Каждый материал резонирует по-разному, например, звучание акустической гитары зависит даже от породы дерева, из которого изготовлен корпус.
Аппаратурная стойка по своему назначению схожа с корпусом гитары или другого музыкального инструмента. Она играет роль своеобразного фильтра, который определенным образом отражает и поглощает различные частоты от возникающих в компонентах системы вибраций. Профессиональные стойки для аппаратуры разрабатываются с использованием новейших достижений науки и техники. Например:
- чтобы создать эффективную систему развязок от пола и компонентов, разработчики по-разному комбинируют материалы, рассчитают их взаимное положение, массу и плотность, ищут оптимальные формы;
- опоры и рамы производятся из стали и алюминия, полки – из сотовых материалов и многослойного сэндвича;
- в качестве заполнителя может использоваться порошок черного свинца и специальный градуированный чугун.
Усложняем задачу
Даже такое сугубо функциональное помещение, как гардеробная комната создаётся с использованием джокер системы безо всяких проблем. Достаточно следовать ниже приведённой инструкции.
изготавливаем основание. На него будет опираться гардеробная. В качестве основы используется ДСП-панель с такой геометрией: ширина — 2700, а глубина – 500 миллиметров. Прикрепите к ней снизу пластиковые ножки. Чтобы конструкция была способна выдержать немалые нагрузки, поставьте большие. Почему ножки? Тогда вам не придётся сверлить пол при установке стоек;

К основанию гардероба и его стенкам трубы крепятся фланцами, которые бывают обычными и усиленными
С помощью клипс прикрепляем к передним ножкам цоколь или цокольную планку. Помимо декоративной функции, эти элементы создадут дополнительную линию опоры.
- устанавливаем вертикальные стойки. В качестве таковых используйте хромированные трубы джокер длиной (читай, высотой) 2 метра. Для крепления подойдёт такая фурнитура, как фланцы и держатели труб. Две центральные стойки крепим на расстоянии 900 миллиметров от правого и левого краёв;
- устанавливаем верхнюю горизонтальную стенку. Для придания гардеробной надёжности используйте ребро жёсткости длиной 2700 и высотой 300 мм. При помощи конфирматов прикрутите к нему горизонтальную стенку глубиной 482 и длиной 2700 мм. Придать дополнительную прочность этому узлу крепления можно монтажными уголками. Ребро жёсткости при помощи дюбелей прикрепите к стене, а вертикальные стойки с помощью тех же фланцев к основанию;
- устанавливаем полки в гардеробную. Для этого используем такой вид крепления, как полкодержатели. Они бывают одно- и двухсторонними. Последний вариант применяется, когда полки подходят к трубе с двух сторон. Сами полки изготавливаем из ДСП и облицовываем все поверхности. Элементы крепежной системы джокер позволяют установить их на любой высоте, так что в этом отношении трудности у вас тоже не возникнут. В средней секции, чтобы максимально эффективно использовать пространство, установим по полке внизу и вверху, а в оставшееся место помещаем трубу для навешивания плечиков;
- устанавливаем трубу для плечиков. В гардеробной этот элемент так же необходим, как и в шкафу. Допускается установка двух труб. В любом случае предполагается использование такой джокер фурнитуры, как перпендикулярные соединители. Сначала с их помощью закрепим перпендикулярно по отношению к вертикальным стойкам два отрезка трубы, а потом к ним с помощью этих же соединителей закрепляем и трубу для плечиков;
- устанавливаем модули с ящиками. Сделав такие элементы самостоятельно, не забудьте прикрепить к их фасадам хромированные ручки реллинги (в списке джокер фурнитуры есть и такая номенклатурная позиция).
Понятно, что это только пример. Но он в полной мере демонстрирует лёгкость работы с джокер системой.
Гардеробная в интерьере
На финишном этапе разместим нашу гардеробную в помещении, стены которой с имитацией кирпичной кладки, а на полу ламинат.
![]() |
|---|
| Рис. 14. Гардеробная в интерьере |
Понятно, что это всего лишь пример и гардеробную, с учетом описанного подхода, можно сделать разных размеров с различным наполнением. Но главное преимущество – это легкость и дешевизна конструкции гардеробной.
![]() |
|---|
| Рис. 15. Гардеробная из труб Джокер |
Если интересна тема изготовления гардеробных комнат, то читайте нашу статью об изготовлении корпусной гардеробной комнаты из ДСП своими руками.
![]() |
|---|
Гардеробная комната своими руками
В данной статье мы рассмотрим изготовление корпусной гардеробной из ДСП, хотя если есть в продаже мебельный щит, делайте из дерева. Приведенный материал является уникальным для интернета, читать статью.
Все цены в каталоге указаны с НДС для ФИЗИЧЕСКИХ ЛИЦ. Цены для организаций, ИП и частных мастеров доступны только после регистрации и авторизации.
Условия работы и способы получения товара в регионах необходимо уточнять. При оформлении онлайн-заказа за пределами Москвы и МО необходимо выбрать региональный офис продаж. Заявка будет обработана выбранным офисом.
Наличие товара на сайте актуально только для онлайн-заказов в Москве и Московской области.
Системы JOKER и UNO оптимально используют внутреннее пространство помещения, мобильны и универсальны — нет четко заданного шага между узлами. Джокеры не требуют от помещения правильной геометрии — система позволяет создавать прямые и острые углы, не боится перепадов высот потолков. Клиент может сам создавать свою конструкцию, используя готовые наработки или изобретая что-то уникальное, именно поэтому система пользуется такой популярностью.
Основные сферы использования системы JOKER (Джокер):
- торговое оборудование и элементы интерьера магазинов;
- различные конструкции в квартирах: пристеночные конструкции, декоративные элементы кухонь и прочее;
- выставочное оборудование, стенды.


подробнее об акции

Данный товар недоступен
для заказа в вашем регионе
Данный товар недоступен
для заказа в вашем регионе
Данный товар недоступен
для заказа в вашем регионе
Данный товар недоступен
для заказа в вашем регионе
Данный товар недоступен
для заказа в вашем регионе
Данный товар недоступен
для заказа в вашем регионе
Данный товар недоступен
для заказа в вашем регионе
Данный товар недоступен
для заказа в вашем регионе
Данный товар недоступен
для заказа в вашем регионе
Данный товар недоступен
для заказа в вашем регионе
Данный товар недоступен
для заказа в вашем регионе
Данный товар недоступен
для заказа в вашем регионе
Данный товар недоступен
для заказа в вашем регионе
Данный товар недоступен
для заказа в вашем регионе
Данный товар недоступен
для заказа в вашем регионе
Данный товар недоступен
для заказа в вашем регионе
Данный товар недоступен
для заказа в вашем регионе
Данный товар недоступен
для заказа в вашем регионе
Данный товар недоступен
для заказа в вашем регионе
Данный товар недоступен
для заказа в вашем регионе
Этот мем мне абсолютно понятен
В декабре 2015 года, через несколько месяцев после выхода оригинала, пародию на «Идущего к реке» сделал блогер Enjoykin. В его версии из цитат Дур-Дачника получилась песня про человека, который «идёт, как глубокий старец, узревший вечное, любоваться осенним закатом на берегу». Многие пользователи познакомились с творчеством Симакова именно по этой композиции.
За четыре года видео «Идущий к реке» разошлось на пародии, цитаты, копипасты и мемы. Одна из самых популярных вариаций — монолог Дур-Дачника под саундтрек из фильма «Инерстеллар» от Ханса Циммера. Оказалось, что музыка из картины про космос идеально подходит под монолог про «триллионы и триллионы таких же планет».
Спустя четыре года мем жив до сих пор: в соцсетях можно найти либо упоминания «Идущего к реке», либо отрывки из видео. По данным «Google Trends», популярность мема в поисковике достигла пика в августе 2019 года.
В декабре 2018 года в сеть попали неизданные треки рэпера ATL. Один из них назывался «Идущий к реке» — очевидная отсылка в ролику Дур-Дачника. А в августе 2019 года участник рэп-батла на площадке RBL Хип-Хоп Одинокой Старухи вместо раунда зачитал практически весь монолог Симакова.
Текстовых пародий на тот самый монолог тоже до сих пор хватает.
Влад@vlad_dfe31 авг 2019
Люди делятся на два типа:
1. «Ублюдок, мать твою, а ну иди сюда говно собачье, решил ко мне лезть?».
2. «Я в своем познании настолько преисполнился, что я как будто бы уже сто триллионов миллиардов лет проживаю на триллионах и триллионах таких же планет, как эта Земля».
Афиша и шаурмистика@morethananybody2 мая 2019
Выпил пива и в своем познании настолько преисполнился, что я как будто бы уже сто триллионов миллиардов лет проживаю на триллионах и триллионах таких же планет, как эта Земля, мне этот мир абсолютно понятен, и я здесь ищу только одного — покоя, умиротворения и вот этой гармонии
Костюгова@lessprit19 мая 2019
я в поедании черешни уже настолько преисполнилась, что я как будто бы уже сто триллионов миллиардов черешен поглотила на триллионах триллионах таких же планет, как эта земля, мне эта черешня абсолютно понятна, я в ней ищу только одного: покоя, умиротворения и вот этой гармонии
Жорік@weitergeo18 фев 2019
@hornstress Я в своем гетеро познании настолько преисполнился, что я как будто бы уже сто триллионов миллиардов лет занимаюсь сексом с триллионами и триллионами женщин разных этносов и кудьтур.
Мне этот мир абсолютно понятен, и я здесь ищу только одного — покоя и умиротворения
Пан 3абафаній жівчікм@DFENS30008 сен 2018
Я в своем познании настолько преисполнился, что я как будто бы уже сто триллионов миллиардов лет проживаю на триллионах и триллионах таких же планет, как эта Земля, мне этот мир абсолютно понятен, и я здесь ищу только одного — покоя, умиротворения и вот этой гармонии
Свидетели и Егоры23 сен 2019
Я в своем познании настолько преисполнился, что я как будто бы уже инженер-конструктор секс-игрушек из Омска, умеющий довести готовый продукт на стол руководителю.
«Идущий к реке» — начало
Настоящее имя Сержа Дур-Дачника — Сергей Симаков. Сам он , что родился в семье инженеров на Кубани и с самого детства «увлекался информацией»: «Мне были интересны биологические аспекты — жизнь динозавров, пауки, и молекулы, и как устроено всё, формулы, цифры, энциклопедию с удовольствием читал… В садик ходил, был ребёнком вполне себе здоровым, прогрессивным, кои нарождаются и в авангарде становятся».
По словам Симакова, он рос среди взрослых людей с большим жизненным опытом, и это выделило его среди сверстников. В интервью изданию «Такие дела» блогер отметил, что с восьми лет просто перестал общаться с одноклассниками, посвятив себя саморазвитию — и так «через уединение и познание вышел на след бесконечно-вечного».
Симаков окончил школу с отличием, учился в Кубанском государственном технологическом университете, служил в армии. В 2012 году он завёл YouTube, взяв псевдоним Серж Дур-Дачник: Серж — сокращение от «Сергей», Дур — от «дурак», дачник — любимое хобби. Но вместо философских монологов Дур-Дачник записывал странные ролики в полуголом виде.
В 2013 году авторы канала Nemagia сняли обзор на видео Симакова под названием «Чокнутый качок». Сергей не отрицал, что хотел показаться зрителям немного безумным, называя свой образ «импульсивным, эпатажным, экстравагантным и, будем так говорить, вызывающим». По его словам, так и было задумано.
После ещё нескольких обзоров на «чокнутого качка» про Дур-Дачника забыли, но тот не перестал снимать видео для канала. В сентябре 2015 года появился ролик «Идущий к реке», который и увековечил блогера в истории рунета. На видео Симаков идёт по станице Марьинской: «Там очень хороший берег между полей, всё туда уходит. Я люблю гулять по полям — можно далеко идти, людей мало. Я балдею от открытых просторов и полевых уединений. Кричи — не хочу, скачи конём».
Но Дур-Дачник не кричал и не скакал конём, а вёл философские беседы с самим собой. Он рассказывал, как «преисполнился в своём познании» и прожил на Земле 5 миллиардов лет, а до этого — ещё триллионы лет на похожих планетах.
Видео достаточно сложно описать без цитирования всего текста — полностью его можно прочитать в качестве копипасты на других сайтах. У Дур-Дачника получилась причудливая смесь из рассуждений о вечном, пожеланий «на лучших самолётах летать и кончать прямо с иллюминатора» и фраз вроде «тачки-срачки» и «пи***й-бороздуй». Но без сторонней помощи монолог вряд ли бы стал настолько культовым.
Как выбрать?
Опытные звукорежиссеры уже знают, какие стойки для студии лучше выбрать, чем одни отличаются от других и от чего зависит качество. Но если человек новичок в этом деле, и ему предстоит самостоятельно оборудовать студию звукозаписи, к выбору всей техники, в том числе и стоек, нужно подходить основательно
Следует обращать внимание на важные детали
- Вес стойки. Этот пункт наиболее простой, поскольку критерии выбора запомнить несложно: чем больше вес, тем она качественней. Дело в том, что за счет дополнительного веса убираются ненужные низкочастотные вибрации при звучании аудиофайла.
- Прочность конструкции. В идеале стойка должна быть максимально прочной, чтобы в случае чего выдерживать вес даже очень тяжелого монитора.
- Наличие специальных ножек, выполненных в виде шипов. Такие ножки есть далеко не у каждой стойки, но профессионалы знают, что чем меньше площадь соприкосновения стойки с полом, тем меньше риск возникновения низкочастотных колебаний. Ножки-шипы делают соприкосновение с полом мизерным.
- Угол наклона мониторов и регулятор высоты. Регулирующиеся по стоимости значительно дороже, но если было принято покупать изделие с фиксированной высотой, обязательно нужно проверить – комфортно ли будет с ней работать.
Есть еще несколько моментов, которые также необходимо учитывать при выборе. Если по незнанию была куплена слишком легкая стойка, но при этом она имеет полую трубку, то можно попробовать засыпать ее песком или каким-то другим похожим утяжелителем. Некоторые производители намеренно оставляют трубку пустой, чтобы при желании стойке можно было добавить немного веса.
При выборе обязательно нужно поинтересоваться надежностью конструкции. В мануале всегда указывается максимальный вес, который может выдержать приобретаемое изделие.
Немаловажная деталь при покупке — это стоимость. На современном рынке представлено достаточно большое количество моделей, стоимость которых варьируется от 6 до 100 тысяч рублей (можно купить и за более высокую цену).
К элитным моделям, имеющим достаточно высокую цену и соответствующее качество, можно отнести стойки:
- SoundKing;
- QUIK LOK;
- Ultimate Support;
- Tower Sonic.
Некоторые покупатели удивляются тому, что порой стойки стоят гораздо дороже самих мониторов. Такой факт объясняется очень просто — именно от стоек иногда зависит качество работы на студии.
О том, как сделать стойку для студийного монитора, смотрите далее.
Защита от вибраций
Компоненты акустической системы нужно не просто расставить по полкам, а защитить от вибраций. К их влиянию наиболее чувствительны проигрыватели грампластинок. Подвержены вибрациям и все ламповые элементы. Цифровая и другая транзисторная техника лучше противостоит вибрациям, но они могут возникнуть от дисковых приводов или силовых трансформаторов. Поэтому стойки для акустического оборудования должны быть с максимально эффективной виброразвязкой.
Еще сильнее вибрации влияют на колонки, особенно установленные на полках. Для повышения качества звучания напольные колонки имеют твитер или СЧ/ВЧ-блок, который выполнен в отдельном корпусе и механически развязан с основным блоком. Аналогичный эффект достигается при установке компактных полочных колонок на высококлассные инертные стойки под акустику. При установке колонок на неустойчивую полку каждый миллиметр смещения приводит к микроколебаниям через НЧ-динамики и значительным искажениям на ВЧ.
Система Джокер – как сделать и установить
Простейший конструктор с безграничными возможностями
В роли базового элемента системы используется хромированная труба из стали под названием Joker. Свое название труба получила благодаря тому, что ее можно использовать с дополнительными элементами наподобие колес, соединителей, замков, фиксаторов и пр, из-за чего появились предпосылки на быструю мебельную сборку (точно так же, как Джокер в покере помогает игроку получиться максимально выгодную комбинацию). В конструкцию могут входить и другие элементы, к примеру:
- ДСП.
- Листовой пластик.
- Стекло или зеркало.
Это ощутимо расширяет возможности джокерной системы и делает их безграничными! Сталь, из которой делают трубы, хромируют, а вот на внутреннюю поверхность элемента не наносят антикоррозионное покрытие. Это означает, что в местах, где предполагается регулярное контактирование с водой, эту трубу использовать нельзя. По номенклатуре диаметров трубных элементов есть всего 4 позиции – 1 см, 2.5, 3.2 и 5 см, а длина каждой трубы составляет 3 метра. При этом самой популярной трубой стала та, что имеет сечение 2.5 см.
Система сборки по Джокеру в чистом виде стала невероятно популярна в области торгового оборудования – обустройство витрин и изготовление стеллажей. Кроме того, как было сказано ранее, на ее базе можно делать даже корпусные предметы мебели, а иногда мастера-любители и вовсе делают мягкую мебель. К преимуществам можно отнести:
- Доступность – невероятное распространение и демократичная цена.
- Простой сборочный процесс – для проведения работ нужна лишь угловая шлифовальная машинки и набор шестигранников.
- Безграничные возможности применения – нет привязки к геометрии помещения и жесткий стандартов. Большой выбор комплектующих системы Джокер (больше сотни видов!) дает возможность эффективно вписать оборудование в пространство торговых помещений с любыми формами.
- Красивый внешний вид.
Посредством это системы можно сделать стильное торговое/выставочное оборудование, гардеробную систему и прочее. Максимально допустимая нагрузка на 1-метровый пролет оборудования для торговли равен 60 кг. Как показала практика, для многих предприятий розничной торговли этой цифры хватает.
Как рассчитать и обустроить конструкцию
Базой любого оборудования на joker является каркас. Он представляет собой несущую часть, состоящую из трубных хромированных элементов, которые соединяют посредством съемных креплений. Возможные габариты конструкций, а еще эксплуатационные условия предъявляют к соединения повышенные требования в плане надежности, а элементы для скрепления должны быть прочными и высококачественными.
- Чтобы выполнить расчет конструкции, вначале стоит замерить место монтажа.
- После этого определите конкретные размеры планируемого изделия.
- Для упрощения процесса выбора конфигурации можно рассмотреть реализованные примеры. Это даст возможность нарисовать в воображении свою систему.
- Далее перенести эскиз на бумагу, проставьте размеры и выберите элементы крепежной системы.
- Подсчитайте, сколько нужно труб и креплений.
- Толщину стенки труб выбирайте под параметр нагрузки на конструкцию. Хотя трубы со стенками 0.1 см стоят дороже, они намного прочнее, нежели изделия со стенками меньшей толщины. И если для вертикальных стоек факт не очень критичный, то для горизонтального лучше применять более толстостенный вариант труб.
Толщина трубной стенки выбирается в зависимости от назначения конструкции и планируемой нагрузки. После проделывания вышеуказанных мероприятий можно отправиться в магазин, где продают фурнитуру для мебели
При выборе важно обратить внимание на такой момент – все фурнитурные элементы Джокера регулируются посредством шестигранника, и лишь фланцы труб крепят к полу/ДСП поверхностям на саморезы
Трубы нарезают в размер посредством угловой шлифовальной машинки или ножовки по металлу. Произвести сборку конструкции при наличии минимальных навыков можно на 40 минут. При этом для сборки нужен лишь имбусовый ключ (т.е. стандартный шестигранник).
Установка полок в гардеробной
Для крепления полок к трубам будем использовать односторонние и двухсторонние полкодержатели, если к трубе подходят полки с двух сторон.
| Рис. 7. Полкодержатель односторонний |
| Рис. 8. Полкодержатель двухсторонний |
Полки изготовим из ДСП, панели облицуем со всех сторон. Панели установим на равной высоте, или ставьте на нужной вам высоте на разных расстояниях, крепления позволяют это сделать.
|
|
|---|
| Рис. 9. Установка полок в гардеробной комнате |
В средней секции установим по полке вверху и внизу, чтобы эффективно использовать пространство, а оставшееся место используем для установки трубы для навешивания плечиков.
Для крепления этих полок используйте двухсторонние полкодержатели.
|
|
|---|
| Рис. 10. Установка полок в средней секции гардеробной комнаты |
Как правильно хранить обувьУ Вас много обуви? К Вашему вниманию решения для хранения |
↑ Ах! Эти ножки, попки полки…
Далее за мной следовал выбор материала полок, вида перемычек и естественно ножки. С ногами сразу всё стало ясно – это будут колёсики. Т.к. компоненты у меня тяжелые, а лень матушка диктует мне, что не стоит каждый раз отключать и снимать всю аппаратуру, если я решил пропылесосить под и за стойкой. Забегая вперед, скажу что я не промахнулся, с колёсиками вместо ног получилось всё отлично. А вот чего же делать, то с материалом полок? Стекло я отмёл сразу из собственных вкусовых предпочтений. Нацелился на дерево. Но какое? Или пойти по щедрому пути и шикануть, заказав шлифованное МДФ и шпонировать его или ограничится ламинированным ДСП с торцовкой? Невольно вспоминая свой трудный опыт шпонирования двух небольших полочников, шальную мысль о шпонировании я отмёл быстро. Следовательно у меня остался единственный вариант — заказать ламинированное ДСП с торцеванием. Чего я и сделал. Потопал в контору занимающуюся порезкой, кромкованием и всем-всем всем связанным с ДСП, тыкнул под нос менеджеру бумажку с незатейлевым чертежиком, выбрал материал (16 мм меня полностью устроило, рисунок «Зебрано»). Я расплатился, получил в ответ квитанцию и потопал домой.
↑ Сборка
Настал день получения напиленных дров на деревообрабатывающем участке. Запряг «лихого коня» в лице родного брата и отправился за полками. Получили, взглянул – какие то они неказистые получились, толи угол задний слишком большой, толи еще чего. Но деваться уже было некуда. Припёрли мы это счастье домой и начали сборку. Разметив по краям передней части и по середине задней, я принялся сверлить по намеченным точкам глухие отверстия 2,5 мм под шурупы крепления фланцев. Чтобы не попасть саморезом в саморез я разворачивал фланцы относительно друг друга на необходимый угол, показанный на рисунке:

Красным обозначены саморезы с одной стороны полки, синим с другой. Саморезы брал на 16 мм, пару мм мы выигрываем за счет толщины фланца и ничего с другой стороны ДСП у нас торчать не будет. Цвет саморезов максимально приближен к цвету фланцев.
↑ Joker трубчатый
Пока дерево было в порезке я обдумывал перемычки. Перебрав кучу материалов, я остановился на самом простом, и, как мне показалось, весьма симпатичном. Это стальные хромированные трубы системы Joker для торгового оборудования. Во-первых, их везде валом. Во-вторых, для их крепления не нужно иметь навыки краснодеревщика, а достаточно шуруповёрта или дрели со сверлом на 2,5 и крестообразной отвертки.

Труба продается метражом, некоторые конторы могут сразу красиво нарезать в размер труборезом.

Стандартный фланец для крепления. Таких понадобилось 24 штуки. Выбирая расстояние между полками, я ориентировался на имеющуюся у меня аппаратуру, а также глядя в будущее прикидывал, чего бы мне еще такого хотелось, и получилось у меня 3 полки высотой по 20 см и одна 15 см.
Установка модуля с ящиками в гардеробной
Модуль с ящиками необходимый элемент в гардеробной. Подробно о ящиках и направляющих читайте в разделе какие бывают направляющие.
Какие бывают направляющие
Обзор роликовых, шариковых направляющих, метабоксов, тандемов и тандембоксов, переходим на страницу.
Модуль сделаем самостоятельным изделием, со своими боковыми стенками, дном и горизонталями. При расчете ширины учтите пространство, которое забирают полкодержатели. А снизу на дно тумбы установите наконечники, чтобы тумба не становилась прямо на держатели труб.
На фасады тумбы установите хромированные ручки реллинги, которые в сочетании с хромированными трубами придадут вашей гардеробной стильный вид.
В качестве расцветок лучше использовать не традиционные и надоевшие цвета бук или каштан, однотонные декоры, а лучше древоподобные декоры экзотических пород дерева.
![]() |
|---|
| Рис. 13. Гардеробная – модуль с ящиками |
Двойная стойка
Для того чтобы изготовить данный комплект из двух единиц, необходимо иметь доски хвойных пород дерева, деревянный брус, морилку, лак, металлические ножки и винты по дереву, наждачную бумагу, столярный клей D3, ваймы. Для начала нужно начертить чертеж будущей конструкции. Так как телевизор располагается на прямоугольной полке, ее длина должна на несколько сантиметров выступать за края экрана с каждой стороны. Обрезаются доски нужной длины для двух прямоугольных полок и трех квадратных. Затем промазываются боковые планки столярным клеем и стягиваются ваймами до полного застывания. При температуре больше 8 градусов клей сохнет около 40 минут. Если температура ниже, то клей не возьмется, делать этого нельзя. Лучше всего заклеить и оставить заготовку на всю ночь.

Готовые щиты тщательно прочухиваются наждачной бумагой №80, потом №120, в конце №180. Покрывается все морилкой. Цвет выбираете по своему желанию. Потом покрывается слоем грунта. После высыхания потереть еще раз наждачкой №180, так как поднимется ворс от грунта. Последним этапом будет покрытие лаком.
Дальше готовим квадратные деревянные брусья. Под верхние полки вырезается угол буквой Г в полдерева, под среднюю и нижнюю — буквой П, тоже в полдерева. После примерки полок на ножки и сверления отверстий для зажатия винтами, повторяем процедуру покраски для ножек. После сборки полок переворачиваем их вверх ногами и прикручиваем металлические ножки. Стойка для аппаратуры из дерева готова.
Требования к стойкам под аппаратуру
Независимо от того, решите вы купить или сделать стойку под аудио аппаратуру своими руками, она должна:
- Способствовать высокому качеству звучания – создавать благоприятные акустические условия для передачи звука. Стойка с виброразвязкой улучшает динамику на 10–20%, создает более плотный и мощный бас, делает звучание более богатым и объемным, обеспечивает ему чистоту и глубину.
- Обеспечивать виброизоляцию и демпфирование – отсекать все резонансы или управлять вибрациями, контролировать их, грамотно реагировать на колебания, дифференцированно поглощать или отражать их.
- Обеспечивать удобный доступ ко всем компонентам системы.
- Гарантировать надежную установку и безопасность использования техники – выдерживать большие весовые нагрузки, не препятствовать естественной вентиляции и охлаждению.
- Гармонично дополнять систему и вписываться в интерьер.
- Рационально использовать занимаемую площадь.
Аппаратурная стойка не способна устранить дефекты электроники, но от нее этого и не требуется. Ее задача – исполнять перечисленные функции и способствовать максимальному раскрытию возможностей аппаратуры. Благодаря таким подставкам достигается чистое звучание, создаются условия для просмотра фильмов и прослушивания музыки в таком же высоком качестве, как в кинотеатре.
Камрад, рассмотри датагорские рекомендации
? Купон до 1000₽ для новичка на Aliexpress
Никогда не затаривался у китайцев? Пришло время начать! Камрад, регистрируйся на Али по нашей ссылке. Ты получишь скидочный купон на первый заказ. Не тяни, условия акции меняются.
? Полезные и проверенные железяки, можно брать
Куплено и опробовано читателями или в лаборатории редакции.
Характеристика
В студиях звукозаписи можно увидеть три варианта установки мониторов: монтирование в стену, установка на верхний ярус стола звукорежиссера и наиболее оптимальный вариант — использование специальных стоек.
Стойки под акустические мониторы выполняют ряд важных функций.
- Позволяют зафиксировать мониторы на комфортном для режиссера уровне. При необходимости с их помощью можно изменить уровень наклона, что, например, недоступно в том случае, если монитор зафиксирован в стене.
- Обуславливают плотную, но при этом эластичную фиксацию мониторов.
- Обеспечивают защиту от нежелательных вибраций.
Читательское голосование
Статью одобрили 30 читателей.
Для участия в голосовании зарегистрируйтесь и войдите на сайт с вашими логином и паролем.
Виды
Стойки для студийных мониторов разделяются по некоторым критериям.
По виду: напольные, настенные и настольные. Здесь все зависит от того, для какой именно цели будет использоваться стойка.
По форме — они могут быть квадратными, прямоугольными или даже круглыми.
По весу.
По материалу изготовления. В большинстве случаев стойки выполнены из комбинированных материалов: металла, пластика, текстиля.
По цвету
Конечно, это не так важно, но гораздо приятнее работать в уютной и стильной студии.
Кроме того, стойки отличаются друг от друга по размеру.
Общаемся по статье ?
Что с Дур-Дачником сейчас
Серж Дур-Дачник до сих пор активно ведёт свой YouTube-канал: видео появляются практически каждый день, прошло уже более 90 прямых трансляций. «Таким делам» блогер рассказывал, что увлечение не приносит ему денег, но на канале можно найти рекламу, а на стримах он получает донаты от подписчиков. Их набралось около 50 тысяч.
Несмотря на количество новых роликов, все они несопоставимы по по популярности с легендарным монологом. Кажется, Симаков и сам это понимает: и в названии каналов, и в названии каждого видео он добавляет «Идущий к реке», а также периодически пытается повторить прогулку с разговорами на другие темы. Но получается уже совсем не то.
В мае 2019 года блогер подробно рассказал, что вкладывал в оригинальный ролик. По его словам, монолог — «триумф освобождения от всего земного» и набор тем, которые «будоражат каждого». С другой стороны, отметил Дур-Дачник, эмоциональная тирада во время похода к реке — осознание собственной ничтожности: «Хотел бы я кончать с иллюминатора, самолёты, тёлки, яхты. Но дурак, слабак и трус».
С собеседником Дур-Дачника всё проще — это разговор с его «собственным ненасытным эго». Поэтому разговор про вечное и планеты — в том числе возвышение над «внутренним я», желающим материальных благ.
19 сентября на канале Симакова появилось видео, очень напоминающее то самое «Идущий к реке». Дур-Дачник идёт по той же дороге, в той же одежде и так же разговаривает с камерой. Но вместо философского монолога он рекламирует корпоративный мессенджер. Тачки и яхты победили.
Фотографии гардеробных с использованием труб Joker
|
Рис. 16. Гардеробная прямая из труб Джокер |
|
Рис. 17. Гардеробная из труб Джокер, две боковые секции для одежды, центральная с ящиками |
|
Рис. 18. Угловая гардеробная из труб Джокер |
|
Рис. 19. П-образная гардеробная из труб Джокер |
|
Рис. 20. Маленькая гардеробная из труб Джокер |
|
Рис. 21. Гардеробная из труб Джокер угловая |
|
Рис. 22. Гардеробная из труб Джокер с небольшой корпусной частью из ДСП |
Читайте далее:
|
Стойка для аудиоаппаратуры из массива бука своими руками
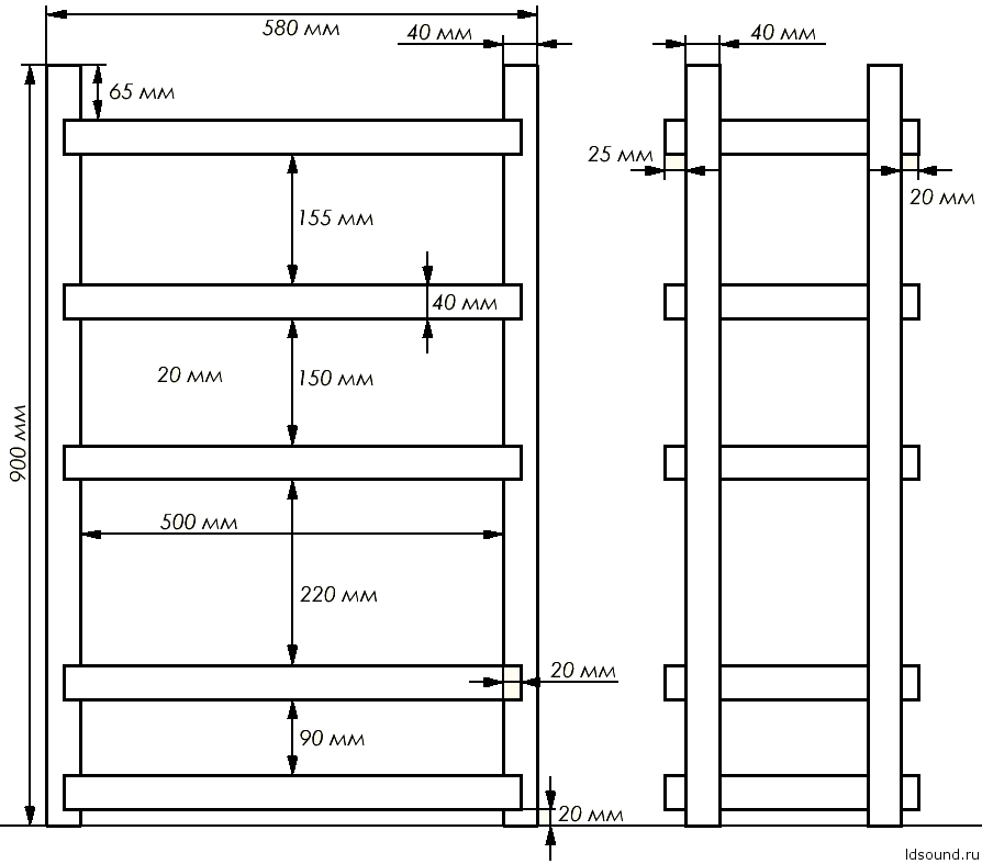
Давно хотел иметь полку под усилители и проигрыватель, чтобы все упорядочить. Немало времени провел в интернете в выборе нужной формы и дизайна. Цена за новые стойки довольно высокая, тем более самому можно сделать при наличии инструмента. В плане была даже из мрамора, но получится она тяжеленной. В итоге выбор пал на массив дерева. Между ясенем, дубом и буком я выбрал последнее. Цена за дуб доходила до уровня мрамора, но оно того стоит, фактура дуба очень красивая, а с покрытием тем более. Но полка будет практически закрыта аппаратурой и вся основная красота будет скрыта, поэтому я и выбрал бук. Если делать подставку под акустические системы, то там будет видна красота дерева больше и советую потратиться именно на дуб.
Несколько вариантов полок для размышления:
Выбирал дизайн так же долго, но в итоге пришел к простому решению – по паре ног по бокам, в которые врезаны и вклеены полки. Размер тоже важный момент. Высота каждой полки 40 мм, боковые бруски 40х40 мм, хотел 50-ки, но их не было. Глубина полки 300 мм, если больше для меня получится громоздко. Ширина, самый широкий усилитель, который мне попадался это «Одиссей-у-010», его ширина 460 мм. Поэтому ширину полки я выбрал с запасом по 20 мм по бокам плюс 20 мм, которые врежутся в боковые бруски – получается 540 мм, общая ширина 580 мм (оставшиеся 20 мм в боковых брусках). Высота, тут уже нужно прикидывать в 3D и по вашим усмотрениям. Мне нужно было 5 мест с запасом в каждой полке по 10 мм. В итоге получалась высота 900 – 1000 мм. 1000 мм смотрится довольно некрасиво и я выбрал 900 мм.
![]()
Твердость разных пород дерева:

Заказал в интернете дерево. Ищите на сайтах, где продают деревянные лестницы, именно там я заказывал. Получил заказ через 2 недели (с учетом работы). Дерево пришло хорошее, сухое, идеально ровное и гладкое, все запечатано в прочный полиэтилен, попадание влаги при транспортировке исключено.
По работе нужно было сделать пазы в боковых брусках, закруглить некоторые углы и все склеить. Вырезать пазы нужно точно, я это делал сразу во всех брусках. Для этого соорудил даже специальный стол-приставку. Инструмент – ручной фрезер, выпиливать ножовкой конечно же не вариант.

За день все сделал. Углы закруглил на всех полках, но только лицевые, на брусках так же, те углы, которые приклеиваются к полкам, оставил острые. Кстати, закругленные углы смотрятся лучше, чем острые, но повторюсь не везде.

Сложил обратно все дерево и уже дома склеивал полку. Клей применил «Момент столяр». Все дерево, которое примыкает к месту склеивания, я оклеил столярным скотчем, чтобы избежать попадания клея на ненужные участки.
В итоге получилась массивная и красивая полка весом 27 кг. Размер ВхШхГ: 900х580х300 мм.
Полка покрыта маслом для дерева средней темноты:
Специально дляldsound.ru Автор работы: LDS
2015


































